Prodej bytu, 2+kk, 60 m2
video
náměstí Sv. Vavřince, Horní Blatná, okres Karlovy Vary, Karlovarský
ID
651559
Užitná plocha
60 m2
Konstrukce
Cihlová
Stav objektu
Velmi dobrý
Vlastnictví
Osobní
Energ.třída
F - Velmi nehospodárná
Vytápění
Lokální elektrické
Voda
Dálkový vodovod
Odpad
Veřejná kanalizace
Sklep
Ano
Podlaží
3. ze 4
Garáž
Ne
Bonus
Čankovská 676/61
Karlovy Vary 360 05
Spustit video
Zobrazit všech
29 fotografií
Popis nemovitosti
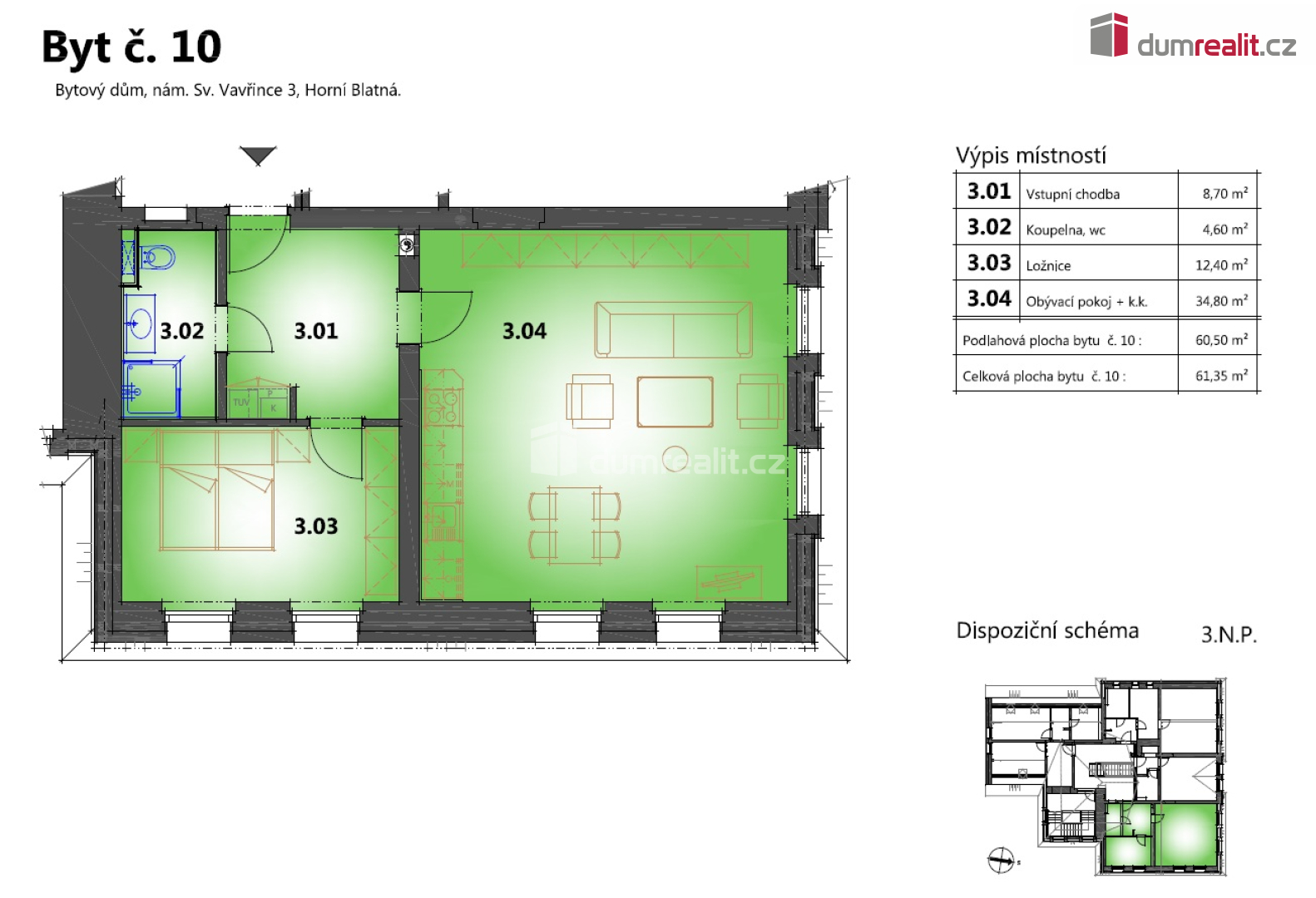
Dumrealit.cz Vám zprostředkuje prodej apartmánů na náměstí Sv. Vavřince v Horní Blatné, které se nachází v blízkosti několika lyžařských areálů jako je Plešivec, Potůčky nebo Klínovec. Apartmán číslo 10. se nachází v druhém patře, je o velikosti 60,5 m² s výhledem na náměstí a kostel Sv.Vavřince. Dispozice bytu 2+KK. Všechny apartmány jsou vybaveny sanitární keramikou v koupelnách, sprchovým koutem Walk-in, podlahovou krytinou a to v kombinaci velkoformátové dlažby a plovoucí podlahy v dekoru dřeva, obložkami, interiérovými a vstupními dveřmi. Součástí jsou také nádherné společné prostory a to včetně sklepního prostoru s možností posezení. Vytápění apartmánů je elektrické s dálkovým ovládáním s připojením na Wi-Fi. V apartmánovém domě se nachází 12 jednotek od 1+KK až po 3+KK různých podlahových výměr. Ke každému apartmánu patří jedno soukromé parkovací místo hned u domu a jedna sklepní kóje, vše je již započítáno v uvedené ceně. Několik apartmánů je již prodáno. Izolant obvodových stěn 16-18cm polystyrenové dílce a 28cm minerální vlna v podkrovní části domu. V uvedené ceně je započítána kuchyňská linka se spotřebiči. Nemovitost se nachází přímo na náměstí s výhledem na hory a kostel Sv. Vavřince. Koupě apartmánu je ideální také jako investice, kdy jsou Krušné hory celoročně navštěvovány turisty a Horní Blatná patří svým umístěním mezi nejvíce vyhledávané. V blízkosti apartmánu se nachází Blatenský vrch, Vlčí jámy a mnoho turistických a cyklo tras. Nemovitost s možností odpočtu DPH z uvedené kupní ceny. Doporučuji nezávaznou prohlídku objektu s možností vybrat si právě ten VÁŠ apartmán. Ev. číslo: 651559.
Nastartujte svoji kariéru, třeba jako...
Elitní makléř
Zařaďte se mezi elitní makléře díky našemu konceptu aktivních tréninků, využití exkluzivních nástrojů a podpory v rámci značky.
Více informací
Makléř srdcař
Milujete kontakt s lidmi, dobře odvedenou práci a skvělé pracovní podmínky? Staňte se makléřem srdcařem a předávejte svou pozitivní energii dál.
Více informací
Rychle vydělávající makléř
Nestačí vám vaše současné příjmy a máte pocit že se vaše kariéra již nikam neposouvá? S naší podporou formou unikátních tréniků a nástrojů začnete vydělávat opravdu rychle.
Více informací

2011 - 2026 © Copyright dumrealit.cz - všechna práva vyhrazena.
DUMREALIT.CZ je sítí nezávisle vlastněných a provozovaných partnerských realitních kanceláří, které nabízejí širokou škálu realitních služeb.
Tyto webové stránky jsou provozovány společností REAL ESTATE CZECH REPUBLIC a.s., sídlem Nad Podbabskou skálou 350/17, 165 00 Praha 6, IČ: 29132886, zapsaná v obchodním rejstříku Městského soudu v Praze, oddíl B, vložka 18734.
Společnost REAL ESTATE CZECH REPUBLIC a.s. je součástí koncernu Národní Realitní Holding.
Chráníme Vaše soukromí
Naše společnost používá soubory cookies, které nám pomáhají zlepšovat funkčnost stránek a zajištují, aby naše
stránky fungovaly bezpečně, neustále se zlepšovaly a přizpůsobovaly vaše vyhledávání. Díky nim dokážeme lépe nabídnout obsah, který pro vás může
být zajímavý a užitečný. Kliknutím na tlačítko „Rozumím“ souhlasíte s využíváním všech cookies.
Více informací